Quadrilocale in vendita

Desenzano Del Garda
€ 850.000
4 locali 4 locali
150 Mq 150 Mq
2 bagni 2 bagni

Quadrilocale in vendita

Desenzano Del Garda

Descrizione annuncio

In una posizione tranquilla e riservata, circondata dal verde, sorge Garda Retreat: un elegante complesso residenziale pensato per chi desidera vivere in un ambiente di prestigio, confortevole e riservato. Il progetto prevede 10 esclusive unità abitative, ciascuna con giardino privato o terrazza vista lago, e la possibilità di aggiungere una piscina privata.

Gli appartamenti, ampi e luminosi, sono disponibili con due o tre camere da letto, doppi servizi e doppi garage. Al secondo piano, gli attici rappresentano l’espressione più alta del comfort: spettacolari terrazze panoramiche, piscina privata e una vista impareggiabile sul lago.

Ogni residenza è personalizzabile.

Appartamento 1

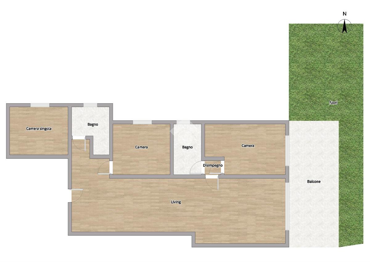
L’appartamento si trova al piano terra e offre spazi ampi e funzionali, ideali per vivere a contatto con la natura senza rinunciare al comfort. La zona giorno, luminosa e accogliente, prevede la possibilità di separare la cucina e si apre su una loggia coperta che affaccia sul giardino privato, perfetto per momenti di relax all’aperto in totale riservatezza. La zona notte è composta da una camera matrimoniale, una camera doppia, una camera singola, due bagni e due garage affiancati al piano interrato.

Un'abitazione pensata per chi desidera vivere in un contesto tranquillo ed elegante, con una vista suggestiva sul Lago di Garda, in equilibrio tra privacy, stile e benessere quotidiano.

Mostra tutto

Nelle vicinanze

Trasporto pubblico Trasporto pubblico
Desenzano del Garda - Sirmione
Desenzano del Garda - Sirmione
1,3 Km
Trasporto pubblico
670 m
Via Michelangelo Dugazze
Via Michelangelo Dugazze
3,0 Km
Trasporto pubblico
1,2 Km
Desenzano
1,2 Km
Ricariche auto elettriche Ricariche auto elettriche
Hotel Bonotto Desenzano
930 m
Gardauno Parcheggio Desenzanino
1,1 Km
Splendido Bay Luxury Spa Resort
2,5 Km
Scuole Scuole
Scuole
850 m
Liceo Bagatta
1,1 Km
Liceo statale Girolamo Bagatta
1,1 Km
Istituto Alberghiero Caterina De Medici
2,0 Km
Istituto tecnico e Professionale Bazoli-Polo
2,3 Km
Farmacia Farmacia
Farmacia Capolaterra
730 m
Farmacia
1,1 Km
Farmacia Comunale
2,2 Km
Farmacia Morandi
3,0 Km
Ospedali Ospedali
Azienda Ospedaliera di Desenzano del Garda
350 m
Supermercati Supermercati
Dpiù
210 m
Italmark
470 m
Lidl
840 m
Esselunga
1,7 Km
Simply
2,4 Km
Negozi Negozi
Minimarket
1,0 Km
Wise
1,1 Km
PrimaDonna Collection
1,1 Km
Champion
1,2 Km
Yamamay
1,2 Km
Bar Bar
Bar del Porto
1,1 Km
Bar Combattenti
1,1 Km
Bianca Caffè
1,3 Km
Olimpia
1,3 Km
Maratona Cafè
1,5 Km
Ristoranti Ristoranti
Trattoria da Renato
560 m
Pizzeria San Benedetto
720 m
Sushiko
790 m
Primavera al Lago
980 m
Osteria Sapore di Vino
1,0 Km
Mostra tutto

Caratteristiche

Rif.:
61112996
Piano:
Terra di 3 con ascensore
Totale piani:
3
Box:
2
Terrazzi:
1
Camere da letto:
3
Mostra tutto
Prezzo Prezzo
€ 850.000
Rata mutuo Rata mutuo
€ 4.038 / mese
Proponi il tuo prezzoProponi il tuo prezzo

Classe Energetica

A4
A4
A4
A4
A4
A4
A4
A4
A4
EP invernale del fabbricato:
EP estiva del fabbricato:
Anno di costruzione:
2025
Riscaldamento:
Autonomo
Tipo impianto:
A pavimento
Tipo alimentazione:
Metano

Ti interessa visionare l'immobile?

Fissa un appuntamento  Fissa un appuntamento

Richiedi informazioni

Clicca su Leggi per aprire l'informativa
* Questi campi sono obbligatori

Calcola il tuo mutuo

Semplice e senza impegno
Anticipo

( % )
Mutuo

( % )

pochi semplici passi

inserisci i tuoi dati
Questionario completato
Grazie per aver richiesto un appuntamento senza impegno con un nostro Consulente del Credito e Assicurativo.

Hai inserito correttamente tutti i dati necessari e a breve riceverai una e-mail con un link da convalidare per inviare i tuoi dati.
Affiliato
Living Desenzano Srl
Via Marconi, 30 25015 Desenzano Del Garda (BS)

Il nostro staff


  • Alessandro Caiola
    Affiliato

  • Giada Pasini
    Coordinatrice

  • Elena Vittorini
    Collaboratrice
Via Marconi, 30 25015 Desenzano Del Garda (BS)
Zona: Lago di Garda - Desenzano
Mostra su mappa
Orari: Orario: Lun - Ven: 09.00 - 13.00 14.30 - 19.00; Sab: 09.00 - 13.00 14.30 - 18.00 Festivi o altri orari su appuntamento.
Affiliato
Living Desenzano Srl
Via Marconi, 30 25015 Desenzano Del Garda (BS)

2026 Tecnocasa Franchising S.p.A. - P. IVA 08365160152 - Via Monte Bianco 60/A 20089 Rozzano (MI). Ogni agenzia ha un proprio titolare ed è autonoma. Privacy policy | Policy utilizzo | Cookie policy